







Office To Let Congleton
PROPERTY ID: 145753
PROPERTY TYPE
Office
STATUS
Let Agreed
SIZE
0 sq.ft
Key Features
Property Details
Unlock Your Perfect Workspace – All-inclusive & Ready To Go!<br />
<br />
Looking For A Professional Space That Adapts To Your Needs? This Modern Lock-up Suite Offers 24/7 Access And A Clean, Secure Environment — Perfect For Office Use Or Client-facing Services Like Beauty Treatments, Physiotherapy, Or Chiropractic Care. <br />
<br />
For Just £175 + Vat Per Month, Enjoy An All-inclusive Package That Covers:<br />
<br />
• High-speed Wi-fi<br />
• Heating & Power<br />
• bright, Efficient Lighting<br />
• access To A Stylish Communal Kitchen<br />
• Quality Wc Facilities<br />
<br />
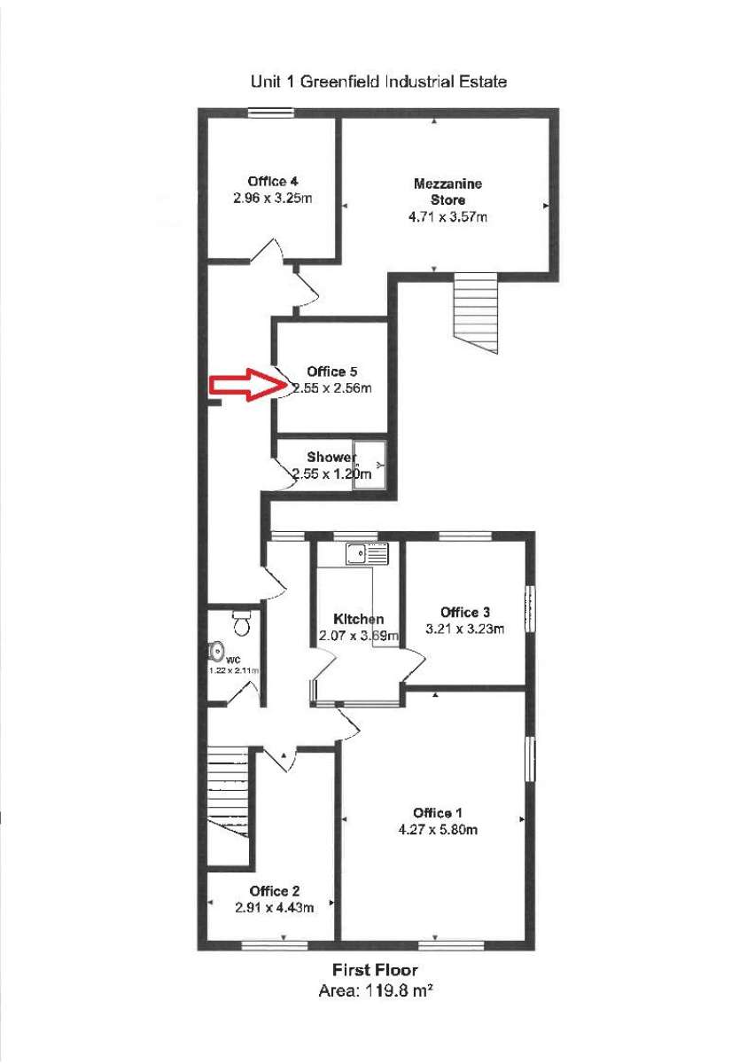
Located On The Sought-after Greenfield Industrial & Office Estate, Right On The Edge Of Congleton, This Space Offers Easy Access To M6 Junctions 17, 18 & 19 – Perfect For Regional Connectivity.<br />
<br />
Your Suite:<br />
• Office Size: 8'4" X 8'5" (2.55m X 2.56m)<br />
• Private, Lockable Door For Peace Of Mind<br />
• Access Via Communal Entrance And Staircase<br />
<br />
Whether You're A Freelancer, Startup, Or Satellite Team, This Is A Hassle-free, Cost-effective Solution To Elevate Your Business Presence.